Корпус распределительный встраиваемый IEK ЩРВ-П-24 IP41 Krepta 3 (24 модуля, прозрачные двери), белый
Пластиковые распределительные корпуса IEK ЩРН(В)-П IP41 Krepta 3 используются в осветительных сетях для установки модульных устройств: автоматических выключателей, устройств защитного отключения, дифференциальных автоматических выключателей, таймеров, устройств управления освещением и т.д.
Надежная современная конструкция и прочный пластик, удобные крепежные приспособления гарантируют изделиям долгий срок службы и безопасность эксплуатации.
Преимущества
- Ударопрочные самозатухающие материалы.
- Увеличенное расстояние от DIN-рейки до задней стенки основания корпуса.
- Простой и быстрый монтаж.
- Маркировочная лента в комплекте.
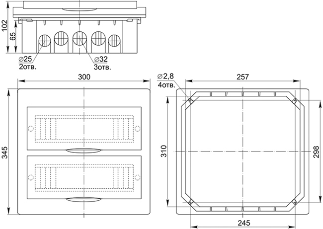
Размеры
Материалы и цвета
| Тип поверхности дверей | прозрачный тонированный |
| Материал дверей | поликарбонат |
| Цвет корпуса | Белый (RAL 9016) |
| Материал корпуса | ударопрочный ABS пластик |
| Материал суппорта для шин N/PE | самозатухающий пластик (огнестойкость +960°C) |
Особенности конструкции
![]() |
Простое введение кабеля, проводов через выштампованные вводы для проводников на задней и боковых стенках корпуса. | ![]() |
Вертикальное расположение корпуса обеспечивает удобство монтажа и дополнительную циркуляцию воздуха. |
![]() |
Не нужно писать на самих автоматических выключателях - специальная лента входит в комплектацию. | ![]() |
Специальный суппорт для крепления шин N и PE легко снимается и устанавливается как в верхней, так и нижней частях основания корпуса. Суппорт самозатухает при +960 °С. |
![]() |
Универсальные анодированные винты защищены от коррозии, подходят к любому типу отвертки. | ![]() |
Полная комплектация корпусов обеспечивает простой и быстрый монтаж. |
Технические характеристики
| Артикул | MKP12-V-24-40-10 |
| Тип изделия | корпус распределительный |
| Исполнение | встраиваемый |
| Количество рядов | 2 |
| Модульная ширина (количество модулей в ряду - шаг 18 мм) | 12 |
| Номинальное рабочее напряжение, В | АС 230 / 400 |
| Частота тока, Гц | 50 |
| Номинальный ток устанавливаемых аппаратов, не более, А | 100 |
| Номинальное напряжение изоляции, В | 660 |
| Количество DIN-реек | 2 |
| Наличие дверцы | есть |
| Наличие монтажной платы | нет |
| Возможность расширения | нет |
| Статическая нагрузка, Н | 27 |
| Температура эксплуатации, °C | -20... +80 |
| Относительная влажность воздуха, не более, % | 50* при +40°C |
| Степень защиты от пыли и влаги | IP41 |
| Климатическое исполнение и категория размещения | УХЛ3 |
| Степень защитты от внешних механических воздействий | IK05 |
| Класс защиты от поражения электрическим током | II |
| Рабочее положение | вертикальное |
| Вес изделия, кг | 1,11 |
| Срок службы, лет | 15 |
* Допускается относительная влажность воздуха до 90% при +20°C.
Преимущества
- Доставка по всей России
- Более 200 000 товаров в ассортименте
- Профессиональная консультация
- Кабель БЕЗ опасности
- Качество по ГОСТу
|
Бренд
|
IEK |
|
СрокГарантии, мес
|
60 |
|
Количество рядов
|
2 |
|
Общее количество модулей
|
24 |
|
Серия
|
dd644cea-6eb2-11ef-a582-00155da43c00 |
|
Тип изделия
|
Бокс |
|
Цвет двери
|
прозрачная |
-
Зайдите на страницу товара и нажмите на кнопку «В корзину».
Далее можно продолжить покупки или перейти к оформлению заказа.
-
Перейдите в Корзину и нажмите «Перейти к оформлению».
Можно авторизоваться или оформить заказ без регистрации. Зарегистрированные пользователи могут:
- Отслеживать статус заказа
- Получать спецпредложения и промокоды на дополнительные скидки
- Укажите Ваши контакты: ФИО, телефон и e-mail.
- Выберите способ получения заказа (доставка или пункт самовывоза) и способ оплаты.
- Далее «Оформить заказ».
Готово: ваш заказ создан! По электронной почте или в личном кабинете Вы можете отслеживать статус заказа.
Теперь останется только ждать доставки и радоваться новой покупке!
Оплачивайте покупки удобным способом.
В нашем интернет-магазине доступно 3 варианта оплаты:
- Оплата наличными или картой при самовывозе в пункте выдачи заказов/магазине.
- Онлайн-оплата на сайте при оформлении заказа. Для совершения покупки система перенаправит вас на страницу платежного сервиса. Здесь необходимо заполнить форму по инструкции.
- Оплата по счету для юридических лиц. Оплата происходит после предоставления реквизитов для выставления счета. Покупатель получает счет на указанный e-mail.
Доступно 3 варианта доставки:
- Самовывоз из магазина. Список торговых точек для выбора появится в корзине. Для получения заказа обратитесь к сотруднику в кассовой зоне и назовите номер заказа.
- Доставка транспортной компанией СДЭК или Почтой РФ в отделение или постамат.
По всем возникающим вопросам можете позвонить нам на горячую линию:
Ежедневно с 8:00 до 20:00 по МСК
E-mail: help@kristall43.ru
Адрес: 610000, г. Киров, ул. Щорса, 68г, кабинет 3






