Корпус ЩУРн-1/12зо-1 36 IP31
Корпус ЩУРн-1/12зо-1 36 IP31 IEK предназначен для сборки учетно-распределительных электрощитов с использованием модульной аппаратуры, для ввода электроэнергии, ее учета и распределения, а также защиты сетей напряжением 230 / 400 В от токов перегрузки и короткого замыкания.
Преимущества
- Повышенная антикоррозийная стойкость.
- Высококачественное наружное покрытие.
- Единый секрет замка.
- Высокая технологичность и простота сборки.
- Высокий уровень электробезопасности.
- Сертификат соответствия.
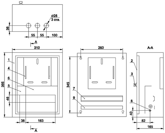
Конструкция и размеры
![]() |
1 - корпус щита. 3 - замок. 5 - фальшпанель. 7 - DIN-рейка. 9 - рейка шин N и PE. |
![]() |
Защитная раздельная оперативная панель исключает возможность поражения током в ходе эксплуатации изделия, а также позволяет пломбировать вводной аппарат без ограничения доступа к групповым аппаратам. |
![]() |
Универсальная монтажная панель под счетчик позволяет без дополнительных переходников установить любые типы однофазных или трехфазных счетчиков. |
![]() |
Информационное окно для удобства снятия показаний счетчика. |
Технические характеристики
| Артикул | MKM25-N-12-31-ZO |
| Тип счетчика | 1 |
| Количество модулей | 12 |
| Вид установки | навесной |
| Номинальный ток, А | 100 |
| Количество вводов | 3 отверстия d 28 мм (снизу) |
| Толщина металла, мм | 0,8 - 1,0 |
| Тип покрытия | порошковое, шагрень |
| Угол открытия двери, градусов | 105 |
| Тип применяемых аппаратов | модульные |
| Степень защиты от пыли и влаги | IP31 |
| Климатическое исполнение | УХЛ3 |
| Вес, кг | 4,5 |
Комплектация
![]() |
![]() |
| Знаки электробезопасности | Маркировочная таблица |
Расшифровка условных обозначений
- Щ - щит.
- УР - учетно-распределительный.
- н - навесного исполнения.
- 1 - тип счетчика однофазный.
- 12 - максимальное количество модулей.
- з - с замком.
- о - с окном.
- 1 - с раздельной оперативной панелью.
- 3 - тип покрытия ЭПК/шагрень.
- 6 - цвет краски RAL 7035.
- IP31 - степень защиты по ГОСТ 14254.
Преимущества
- Доставка по всей России
- Более 200 000 товаров в ассортименте
- Профессиональная консультация
- Кабель БЕЗ опасности
- Качество по ГОСТу
|
Бренд
|
IEK |
|
Высота, мм
|
395 |
|
Глубина, мм
|
165 |
|
СрокГарантии, мес
|
60 |
|
Общее количество модулей
|
12 |
|
С замком
|
Да |
|
Способ монтажа
|
навесной |
|
С окном
|
Да |
|
Серия
|
a10df7c5-e37f-11e9-9833-00155d166b05 |
|
Тип счетчика
|
1 |
|
Ширина, мм
|
310 |
-
Зайдите на страницу товара и нажмите на кнопку «В корзину».
Далее можно продолжить покупки или перейти к оформлению заказа.
-
Перейдите в Корзину и нажмите «Перейти к оформлению».
Можно авторизоваться или оформить заказ без регистрации. Зарегистрированные пользователи могут:
- Отслеживать статус заказа
- Получать спецпредложения и промокоды на дополнительные скидки
- Укажите Ваши контакты: ФИО, телефон и e-mail.
- Выберите способ получения заказа (доставка или пункт самовывоза) и способ оплаты.
- Далее «Оформить заказ».
Готово: ваш заказ создан! По электронной почте или в личном кабинете Вы можете отслеживать статус заказа.
Теперь останется только ждать доставки и радоваться новой покупке!
Оплачивайте покупки удобным способом.
В нашем интернет-магазине доступно 3 варианта оплаты:
- Оплата наличными или картой при самовывозе в пункте выдачи заказов/магазине.
- Онлайн-оплата на сайте при оформлении заказа. Для совершения покупки система перенаправит вас на страницу платежного сервиса. Здесь необходимо заполнить форму по инструкции.
- Оплата по счету для юридических лиц. Оплата происходит после предоставления реквизитов для выставления счета. Покупатель получает счет на указанный e-mail.
Доступно 3 варианта доставки:
- Самовывоз из магазина. Список торговых точек для выбора появится в корзине. Для получения заказа обратитесь к сотруднику в кассовой зоне и назовите номер заказа.
- Доставка транспортной компанией СДЭК или Почтой РФ в отделение или постамат.
По всем возникающим вопросам можете позвонить нам на горячую линию:
Ежедневно с 8:00 до 20:00 по МСК
E-mail: help@kristall43.ru
Адрес: 610000, г. Киров, ул. Щорса, 68г, кабинет 3





